Terreno

Terreno em condomínio fechado à venda em Guaíba RS – 250m² com vista – Reserva das Figueiras

COD: 4199

Coronel Nassuca, Guaíba

Valor

R$ 380.000,00

250(m2)

250(m2)

IPTU: R$ 700,00

Estrutura

0 suite(s)

0 quarto(s)

0 banheiros(s)

0 vaga(s)

Sobre o imóvel

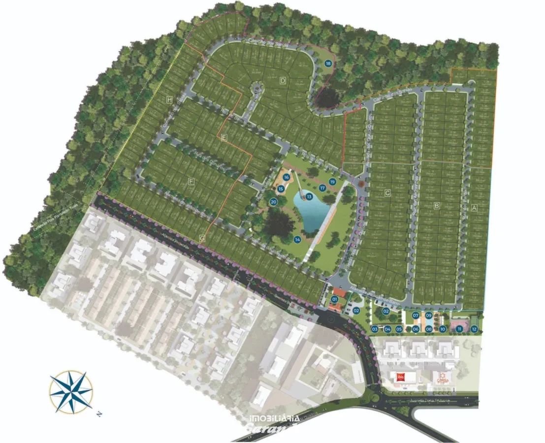
Terreno à venda no Reserva das Figueiras, em Guaíba

Excelente oportunidade para quem busca qualidade de vida, segurança e contato com a natureza. Terreno com 250m² (10x25), localizado em posição privilegiada dentro do condomínio.

Um dos grandes diferenciais deste lote é que ele está na extremidade do condomínio, com os fundos voltados para a área de divisa, proporcionando mais privacidade e uma vista panorâmica incrível da cidade, especialmente por estar em leve declive — ideal para projetos arquitetônicos modernos que valorizam a paisagem.

O condomínio oferece infraestrutura completa de lazer e segurança, incluindo:

Portaria 24 horas
Piscinas adulto e infantil
Salão de festas
Quiosques com churrasqueira
Espaço kids
Pracinha
Quadra de beach tennis
Quadra de tênis
Quadra poliesportiva
Academia
Ambiente planejado, perfeito para construir e viver com tranquilidade, em uma região em constante valorização.

Entre em contato para mais informações.

Avenida Dona Frutuosa, 151, Coronel Nassuca, Guaíba

Conheça a área

Formulário de interesse

Outros imóveis que possam lhe interessar